| 
						(1).jpg)  
						
							
								|  |  
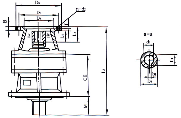
								| (一)電動機接盤型立式減速機安裝尺寸(IEC,Y,YA,YB,YEJ) |  
								| 機型號 | 電動機功率 (KW)
 | 電動機 機座號
 | D5 | d1 | 公差 | b1 | h1 | L4 | D6 | 公差 | D7 | D8 | f | B | n | d2 | L3 | M | CE | L2 |  
								| 1 | 0.25 0.37
 | 71 | 37 | 14 | F7 | 5 | 16.3 | 16 | 110 | H8 | 130 | 160 | 4 | 12 | 4 | 10 | 30 | 48 | 123 | 241 |  
								| 0.55 0.75
 | 801 802
 | 37 | 19 | 6 | 21.8 | 27 | 130 | 165 | 200 | 4 | 12 | 4 | 12 | 40 | 48 | 123 | 248 |  
								| 2 | 0.37 | 71 | 37 | 14 | 5 | 16.3 | 20 | 110 | 130 | 160 | 4 | 12 | 4 | 10 | 30 | 42 | 127 | 239 |  
								| 0.55 0.75
 | 801 802
 | 37 | 19 | 6 | 21.8 | 25 | 130 | 165 | 200 | 4 | 12 | 4 | 12 | 40 | 42 | 127 | 246 |  
								| 3 | 0.37 | 71 | 37 | 14 | 5 | 16.5 | 20 | 110 | 130 | 160 | 4 | 12 | 4 | 10 | 29 | 50 | 158 | 280 |  
								| 0.55 0.75
 | 801 802
 | 37 | 19 | 6 | 21.8 | 28 | 130 | 165 | 200 | 4 | 15 | 4 | 12 | 40 | 50 | 158 | 296 |  
								| 1.1 1.5
 | 90S 90L
 | 47 | 24 | 8 | 27.3 | 33 | 130 | 165 | 200 | 4 | 15 | 4 | 12 | 50 | 50 | 158 | 303 |  
								| 2.2 | 100L | 55 | 28 | 8 | 31.3 | 41 | 180 | 215 | 250 | 5 | 15 | 4 | 15 | 59 | 50 | 158 | 308 |  
								| 4 | 0.75 | 802 | 37 | 19 | 6 | 21.8 | 25 | 130 | 165 | 200 | 4 | 15 | 4 | 12 | 40 | 79 | 176 | 343 |  
								| 1.1 1.5
 | 90S 90L
 | 47 | 24 | 8 | 27.3 | 32 | 130 | 165 | 200 | 4 | 15 | 4 | 12 | 49 | 79 | 176 | 350 |  
								| 2.2  3 4
 | 100L 112M
 | 55 | 28 | 8 | 31.3 | 41 | 180 | 215 | 250 | 5 | 17 | 4 | 15 | 60 | 79 | 176 | 367 |  
								| 5.5 | 132S | 65 | 38 | 10 | 41.3 | 57 | 230 | 265 | 300 | 5 | 17 | 4 | 15 | 80 | 79 | 176 | 396 |  
								| 5 | 1.5 | 90L | 47 | 24 | 8 | 27.3 | 33 | 130 | 165 | 200 | 4 | 16 | 4 | 12 | 50 | 92 | 233 | 426 |  
								| 2.2  3 4
 | 100L 112M
 | 55 | 28 | 8 | 31.3 | 41 | 180 | 215 | 250 | 5 | 17 | 4 | 15 | 60 | 92 | 233 | 422 |  
								| 5.5 7.5
 | 132S 132L
 | 65 | 38 | 10 | 41.3 | 56 | 230 | 265 | 300 | 5 | 17 | 4 | 15 | 79 | 92 | 233 | 465 |  
								| 11 15
 | 160M 160L
 | 75 | 42 | 12 | 45.3 | 83 | 250 | G8 | 300 | 350 | 6 | 20 | 4 | 19 | 110 | 92 | 233 | 495 |  
								| 6 | 2.2  3 4
 | 100L 112M
 | 55 | 28 | 8 | 31.3 | 41 | 180 | G8 G8
 | 215 | 250 | 5 | 18 | 4 | 15 | 59 | 92 | 276 | 481 |  
								| 5.5 7.5
 | 132S 132L
 | 65 | 38 | 10 | 41.3 | 57 | 230 | 265 | 300 | 6 | 18 | 4 | 15 | 80 | 92 | 276 | 510 |  
								| 11 15
 | 160M 160L
 | 75 | 42 | 12 | 45.3 | 81 | 250 | 300 | 250 | 5 | 20 | 4 | 19 | 110 | 92 | 276 | 547 |  
								| 7 | 4 | 112M | 55 | 28 | 8 | 31.3 | 41 | 180 | H8 | 215 | 250 | 5 | 17 | 4 | 15 | 59 | 114 | 193 | 527 |  
								| 5.5 7.5
 | 132S 132M
 | 65 | 38 | 10 | 41.3 | 57 | 230 | 265 | 300 | 5 | 18 | 4 | 15 | 78 | 114 | 293 | 550 |  
								| 11 15
 | 160M 160L
 | 75 | 42 | 12 | 45.3 | 81 | 250 | G8 | 300 | 350 | 6 | 20 | 4 | 19 | 110 | 114 | 293 | 592 |  
								| 8 | 7.5 | 132M | 65 | 38 | 10 | 41.3 | 57 | 230 | H8 | 265 | 300 | 5 | 18 | 4 | 15 | 80 | 112 | 353 | 607 |  
								| 11 15
 | 160M 160L
 | 80 | 42 | 12 | 45.3 | 81 | 250 | G8 | 300 | 350 | 6 | 22 | 4 | 19 | 109 | 112 | 353 | 658 |  
								| 18.5 | 200L | 105 | 55 | E7 | 16 | 59.3 | 80 | 300 | 350 | 400 | 6 | 25 | 4 | 19 | 110 | 112 | 353 | 647 |  
								| 9 | 11 15
 | 160M 160L
 | 80 | 42 | F7 | 12 | 45.3 | 80 | 250 | 300 | 350 | 6 | 25 | 4 | 19 | 108 | 170 | 400 | 757 |  
								| 10 | 22 | 200L | 105 | 55 | E7 | 16 | 59.3 | 80 | 300 | 350 | 400 | 6 | 28 | 4 | 19 | 109 | 174 | 461 | 835 |  
								| 11 | 22 | 200L | 105 | 55 | 16 | 59.3 | 80 | 300 | 350 | 400 | 6 | 30 | 4 | 19 | 109 | 210 | 628 | 1094 |  
 
						
							
								| (二)電動機接盤型立式減速機外形安裝尺寸(配NEM A電動機) |  
								| 機座號 | 電動機功率 (Hp)
 | 電動機 機型號
 | D5 | d1 (F7)
 | b1 | h1 | L4 | D6 (H8)
 | D7 | D8 | f | B | n | d2 | L3 | M | CE | L2 |  
								| 1 | 1/3,1/2,3/4 | 56 | 37 | 15.87 (5/8)
 | 4.76 (3/16)
 | 18.2 | 36 | 114.3 (4-1/2)
 | 149.22 (5-7/8)
 | 165 (6-1/2)
 | 4 | 13 | 4 | 11 | 52 | 48 | 123 | 271 |  
								| 1 | 143T | 47 | 22.22 (7/8)
 | 4.76 (3/16)
 | 24.5 | 54 |  
								| 2 | 1/2,3/4 | 56 | 37 | 15.87 (5/8)
 | 4.76 (3/16)
 | 18.2 | 36 | 114.3 (4-1/2)
 | 149.22 (5-7/8)
 | 165 (6-1/2)
 | 4 | 13 | 4 | 11 | 52 | 42 | 127 | 264 |  
								| 1 | 143T | 47 | 22.22 (7/8)
 | 4.76 (3/16)
 | 24.5 | 54 |  
								| 3 | 1/2,3/4 | 56 | 37 | 15.87 (5/8)
 | 4.76 (3/16)
 | 18.2 | 36 | 114.3 (4-1/2)
 | 149.22 (5-7/8)
 | 165 (6-1/2)
 | 4 | 13 | 4 | 11 | 52 | 50 | 158 | 303 |  
								| 1 | 143T | 47 | 22.22 (7/8)
 | 4.76 (3/16)
 | 24.5 | 54 |  
								| 1-1/2,2 | 145T |  
								| 3 | 184 |  
								| 4 | 1 | 143T | 47 | 22.22 (7/8)
 | 4.76 (3/16)
 | 24.5 | 36 | 114.3 (4-1/2)
 | 149.22 (5-7/8)
 | 165 (6-1/2)
 | 4 | 13 | 4 | 11 | 54 | 79 | 176 | 360 |  
								| 1-1/2,2 | 145T |  
								| 3 | 182T | 55 | 28.57 (1-1/8)
 | 6.35 (1/4)
 | 31.7 | 36 | 215.9 (8-1/2)
 | 184.15 (7-1/4)
 | 229 (9)
 | 5 | 18 | 4 | 14 | 72 | 395 |  
								| 5 | 184T |  
								| 7-1/2 | 213T | 65 | 34.92 (1-3/8)
 | 7.94 (5/16)
 | 38.8 | 52 | 85 |  
								| 5 | 2 | 145T | 47 | 22.22 (7/8)
 | 4.76 (3/16)
 | 24.5 | 36 | 114.3 (4-1/2)
 | 149.22 (5-7/8)
 | 165 (6-1/2)
 | 4 | 15 | 4 | 14 | 54 | 92 | 233 | 420 |  
								| 3 | 182T | 55 | 28.57 (1-1/8)
 | 6.35 (1/4)
 | 31.7 | 36 | 215.9 (8-1/2)
 | 184.15 (7-1/4)
 | 229 (9)
 | 5 | 18 | 4 | 14 | 72 | 450 |  
								| 5 | 184T |  
								| 7-1/2 | 213T | 65 | 34.92 (1-3/8)
 | 7.94 (5/16)
 | 38.8 | 52 | 215.9 (8-1/2)
 | 184.15 (7-1/4)
 | 229 (9)
 | 5 | 18 | 4 | 14 | 85 | 465 |  
								| 10 | 215T |  
								| 15 | 254T | 75 | 41.27 (1-5/8)
 | 9.52 (3/8)
 | 45.6 | 71 | 215.9 (8-1/2)
 | 184.15 (7-1/4)
 | 254 (10)
 | 5 | 22 | 4 | 14 | 101 | 485 |  
								| 20 | 256T |  
								| 6 | 3 | 182T | 55 | 28.57 (1-1/8)
 | 6.35 (1/4)
 | 31.7 | 36 | 215.9 (8-1/2)
 | 184.15 (7-1/4)
 | 229 (9)
 | 5 | 18 | 4 | 14 | 72 | 92 | 276 | 513 |  
								| 5 | 184T |  
								| 7-1/2 | 213T | 65 | 34.92 (1-3/8)
 | 7.94 (5/16)
 | 38.8 | 52 | 85 |  
								| 10 | 215T |  
								| 15 | 254T | 75 | 41.27 (1-5/8)
 | 9.52 (3/8)
 | 45.6 | 71 | 215.9 (8-1/2)
 | 184.15 (7-1/4)
 | 254 (10)
 | 5 | 22 | 4 | 14 | 101 | 528 |  
								| 20 | 256T |  
								| 7 | 5 | 184T | 55 | 28.57 (1-1/8)
 | 6.35 (1/4)
 | 31.7 | 36 | 215.9 (8-1/2)
 | 184.15 (7-1/4)
 | 229 (9)
 | 5 | 20 | 4 | 14 | 72 | 114 | 293 | 560 |  
								| 7-1/2 | 213T | 65 | 34.92 (1-3/8)
 | 7.94 (5/16)
 | 38.8 | 52 | 85 |  
								| 10 | 215T |  
								| 15 | 254T | 75 | 41.27 (1-5/8)
 | 9.52 (3/8)
 | 45.6 | 71 | 215.9 (8-1/2)
 | 184.15 (7-1/4)
 | 254 (10)
 | 5 | 22 | 4 | 14 | 101 | 580 |  
								| 20 | 256T |  
								| 8 | 10 | 215T | 65 | 34.92 (1-3/8)
 | 7.94 (5/16)
 | 38.8 | 52 | 215.9 (8-1/2)
 | 184.15 (7-1/4)
 | 229 (9)
 | 5 | 20 | 4 | 14 | 85 | 112 | 353 | 620 |  
								| 15 | 254T | 75 | 41.27 (1-5/8)
 | 9.52 (3/8)
 | 45.6 | 71 | 215.9 (8-1/2)
 | 184.15 (7-1/4)
 | 254 (10)
 | 5 | 22 | 4 | 14 | 101 | 640 |  
								| 20 | 256T |  
								| 9 | 15 | 254T | 75 | 41.27 (1-5/8)
 | 9.52 (3/8)
 | 45.6 | 71 | 215.9 (8-1/2)
 | 184.15 (7-1/4)
 | 254 (10)
 | 5 | 22 | 4 | 14 | 101 | 170 | 400 | 750 |  
								| 20 | 256T |  
								| 
										法蘭聯(lián)接型表示示例  
									 |  
								|  |  |